全国服务热线:400-651-5676

北京总部热线:010-69739621

专业咨询 规划设计 工程建设 专用设备 认证服务 运维服务

实验医疗研产环境整体规划设计

LEARN MORE

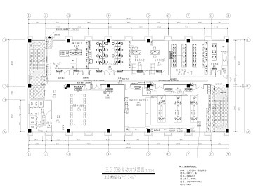
环境检测实验室设计方案

LEARN MORE

疾控中心实验室设计方案

LEARN MORE

石油化工实验室设计方案

LEARN MORE

动物房\spf动物房设计方案

LEARN MORE

P2、P3实验室设计方案

LEARN MORE

微生物实验室设计方案

LEARN MORE

研发实验室设计方案

LEARN MORE

药品检测实验室设计方案

LEARN MORE

Copyright © 2019 slplab.com, All rights reserved. 京ICP备11026370号-1